What is a 20ft two-story container house?
A 20ft two-story container house uses standard or high-cube 20-foot shipping containers as basic units.Through structural reinforcement and modular design,multiple containers are stacked vertically to form a container building with two independent usable spaces.
Unlike traditional temporary buildings or ordinary modular houses,a two-story container house can still provide a relatively complete functional layout within a compact volume.Under limited land conditions,it achieves higher space utilization,allowing for flexible planning of functional spaces such as living rooms,bedrooms,kitchens,and bathrooms.The overall user experience is closer to that of a truly habitable and long-term usable house.
This structure is often used in applications such as residences,offices,commercial spaces,and project camps where site conditions are relatively limited,but high space efficiency and functional completeness are required.
What are the differences between a 20ft two-story container house and a single-story container house?
Compared to single-story container houses,20ft two-story container houses have more significant advantages in terms of space organization and usage:
In terms of space utilization:
Single-story 20ft container houses are usually combined horizontally,resulting in a relatively large footprint;while the two-story structure,by stacking upwards,obtains a larger usable space under the same footprint,making it more suitable for projects with limited land or those requiring increased floor area ratio.
In terms of functional division:
The functions of a single-story container house are mostly concentrated on the same plane,with a relatively simple spatial hierarchy;a two-story container house can separate public and private areas into upper and lower levels,making the living or working flow clearer and the space usage more layered.
In terms of long-term use:
The 20ft two-story container house fully considers structural load-bearing capacity,overall stability,and long-term use requirements during the design phase,making it more suitable as a semi-permanent or long-term building solution,rather than just short-term or temporary housing.
WZHhouse Two-Story Container House
The WZHhouse two-story container house adopts a mature and reliable modular design concept,achieving a scientific division of public activity and private rest areas through the spatial separation of the two floors.Within a limited building volume,it fully considers living comfort,functional completeness,and usage flexibility,making it suitable for various living and project application scenarios.

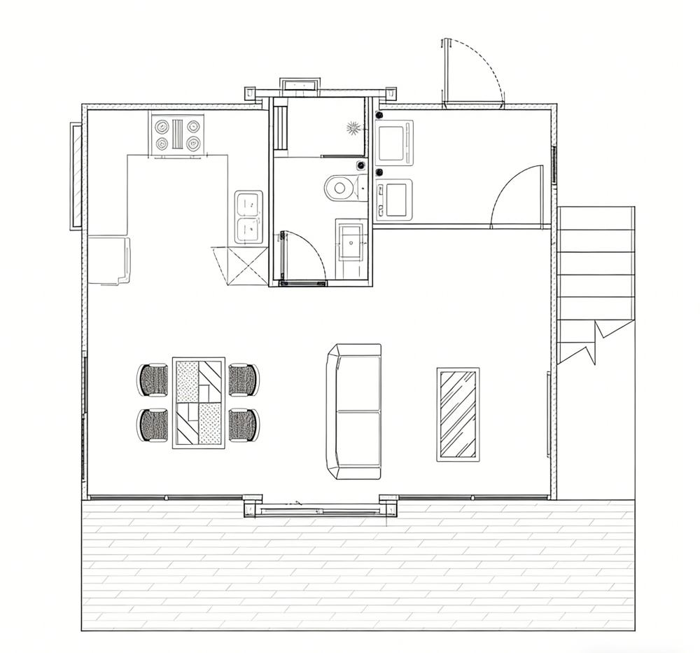
First Floor Layout|Public Activity Area
The first floor mainly serves daily life and reception functions.The overall layout is open,the space is transparent,and the circulation is clear,suitable for frequent use.
Main Functional Configuration:
Living Room
As the core public activity space
Suitable for rest,entertaining guests,and family interaction
Open Kitchen
Integrated design with the living room and dining room
Enhances lighting and spatial extension
Dining Room/Dining Area
Meets the needs of daily family meals and multi-person use
Layout can be flexibly adjusted
Independent Bathroom with Separate Wet and Dry Areas
Clear functional zoning
Improves convenience and comfort when multiple people use it simultaneously
Spatial Characteristics:Open,practical,suitable for frequent use,and the main living center of the entire house.

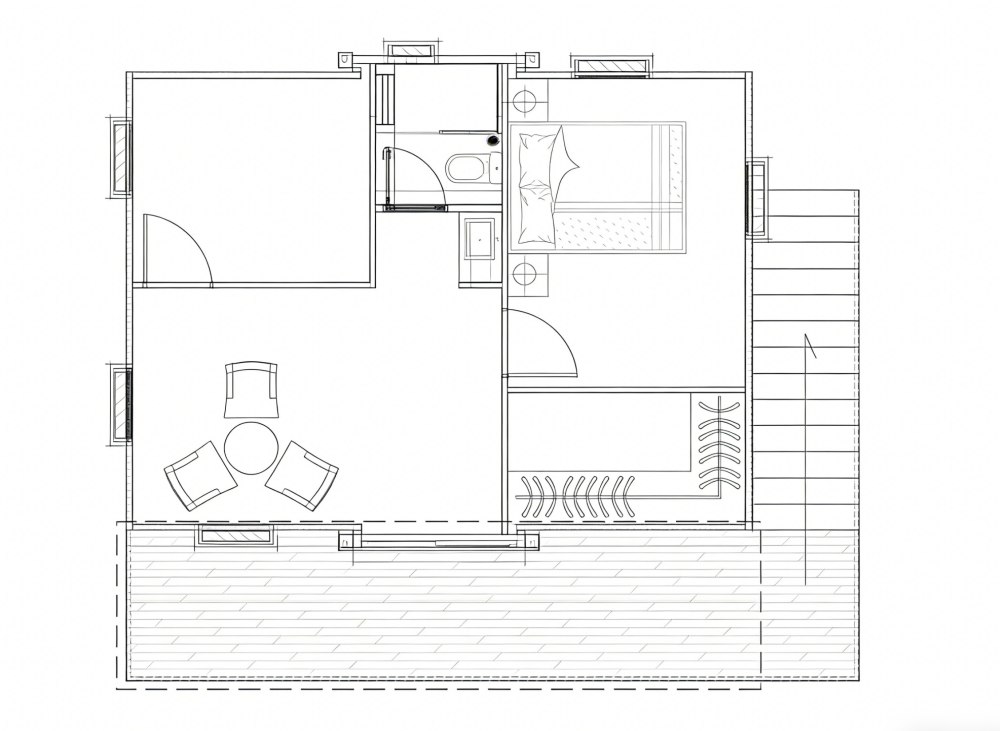
Second Floor Layout|Private Rest Area
The second floor focuses on rest and private space.The overall atmosphere is quieter,suitable for long-term living or high-quality living needs.
Main Functional Configuration:
Small Living Room/Sitting Area
Can be used as a family leisure area,reading area,or secondary reception space
Enhances overall spatial hierarchy and usage flexibility
Two Bedrooms
Master Bedroom:Equipped with a separate small walk-in closet,enhancing storage capacity and living comfort
Second Bedroom:Can be flexibly used as a bedroom or study room as needed
Independent Bathroom with Separate Wet and Dry Areas
Meets the independent use needs of the second floor
Reduces frequent trips up and down stairs,improving living convenience
Spatial Characteristics:Quiet,private,and flexible layout,meeting the living needs of different family members.
Summary of Layout Advantages
Within a limited volume,this two-story container house achieves a living solution with complete functions,clear separation of dynamic and static areas,and flexible space utilization,suitable for:
Family living
Project supporting facilities
Mixed use scenarios for long-term and short-term living and reception
If needed,I can further rewrite this into a website product details page version/English version/technical specification version with area parameters,for direct use in display or sales materials.
What scenarios are WZHhouse two-story container houses suitable for?
Based on the above layout,WZHhouse's two-story container houses are ideal for the following applications:
1.Long-term residential housing
The multi-story design closely resembles traditional residential structures,with the first floor for living and socializing,and the second floor for rest and private space.This is suitable for long-term family living,especially for vacation homes,rural residences,or housing projects near natural environments.
2.Vacation homes/Guesthouses/Container hotels
The configuration with two bathrooms,multiple bedrooms,and a common activity area is ideal for guesthouses,vacation homes,or boutique container hotels.
The independent bedrooms and flexible room design on the second floor also allow for easy adjustment based on the number of occupants,increasing operational flexibility.
3.High-end project camps or management staff accommodation
Compared to traditional worker dormitories,this layout is more suitable for project managers,technical personnel,or long-term on-site staff,ensuring comfortable living while reflecting higher overall quality.
4.Small office+residential mixed-use space
The first floor can be used as a reception area,office area,or display space,while the second floor serves as a rest or living area.This is ideal for small businesses,project offices,or studios requiring integrated workspace and living space.
5.Private customized use
Due to the customizable layout and configuration,WZHhouse's two-story container houses can also be adapted to customer needs,such as family homes,study spaces,remote work residences,or multi-functional living spaces.
FAQs about two-story container houses
1.Are two-story container houses safe to live in?
Yes.Compliantly designed two-story container houses use steel frame structures and reinforced columns,meeting the requirements for normal living,office,and reception use.The floor slabs,stairs,and railings are all designed according to load-bearing standards,ensuring safety and stability during daily use.
2.What is the usable area ofa two-story container house?
Taking a standard 20ft two-story container house as an example,the usable indoor area ofa single floor is approximately 16–17㎡,totaling about 34㎡for both floors.The actual usable space can be further expanded if an external platform or terrace is included.
3.Is a two-story container house suitable for long-term living?
Yes.With proper insulation,soundproofing,moisture-proofing,and water and electricity systems,two-story container houses can meet long-term living needs and are suitable for family homes,employee dormitories,or project support facilities.
4.Can two-story container houses be customized?
Yes.WZHhouse provides customization services,including layout plans,number of rooms,interior design style,bathroom configuration,door and window placement,and exterior facade design,to meet different usage scenarios and project requirements.
5.Do two-story container houses require complex foundations?
Generally,they do not require traditional building foundations.Concrete piers,strip foundations,or steel structure support foundations can be used,resulting in a short construction period and relatively flexible site requirements.
+8615081877521
+8615081877521
